24
$569,900 Sale
Listed 1 day
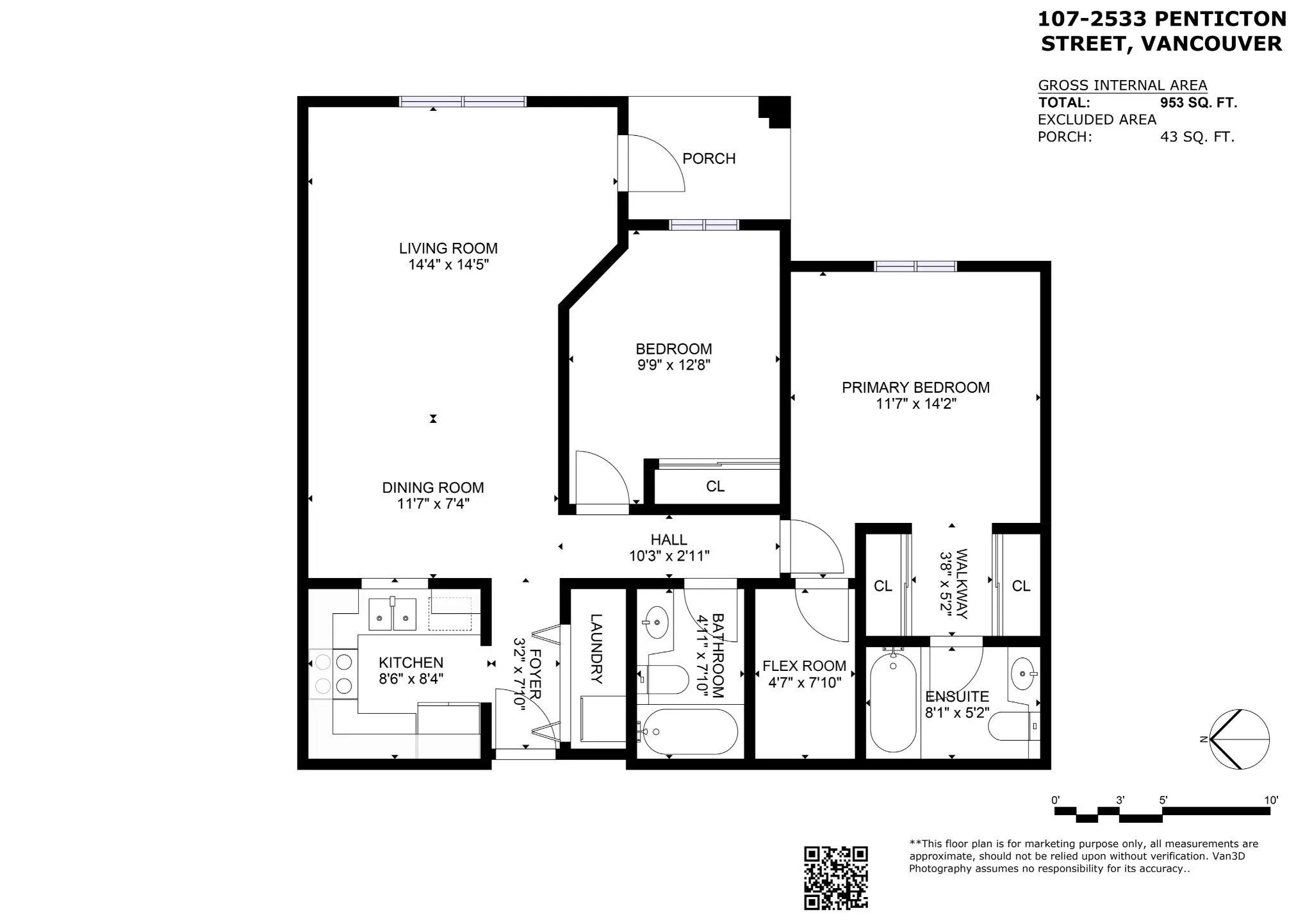
107 2533 Penticton Street
· 2
· 2
· 1
· 953
Key Facts
Key facts for 107 2533 Penticton Street
Property Type
Condo, Ground Level Unit
Parking
1 parking
MLS #
R3057937
Size
953 sqft
Basement
None
Listed on
-
Lot size
-
Tax
$992.45 /yr
Days on Market
-
Year Built
1994
Maintenance Fee
$517.34 /mo
Description
Welcome home to Gardenia Villa! This bright home faces a quiet inner street and enjoys abundant natural light. Functional layout with spacious living and dining areas, plus a large flex room ideal for an office, storage, or walk-in closet. Covered patio opens to a generous outdoor space—perfect for ...BBQs and for kids to play. Steps to Commercial-Broadway and Renfrew SkyTrain stations. Convenient access to Safeway, Superstore, T&T, and restaurants on Commercial Drive. 1 parking & 1 locker. Leaky condo, must pay all cash, no financing available. Building remediation is well underway, includes the replacement of building envelope (doors/windows/cladding/siding/balcony), plumbing, roof, mechanical systems, and common building interior (carpet/paint/light fixtures). Open House: Oct 18 & 19 2-4pm
Similar Properties (No results)
Room Types
Living Room
-
Dimensions 14'5 x 14'4
206.64 sqft
Dining Room
-
Dimensions 7'4 x 11'7
84.94 sqft
Kitchen
-
Dimensions 8'4 x 8'6
70.83 sqft
Courtesy of: Sutton Group - Vancouver First Realty